appartment: SEŽANA

Kind of property:
Appartment
Number of rooms:
1 - room
Size:
40m2
Type of operation:
Sell
Location:
Sežana
Price:
189,000 €

Share with friends

Property description

SEŽANA-CENTER 8 NOVIH STANOVANJ V PRENOVLJENEM OBJEKTU

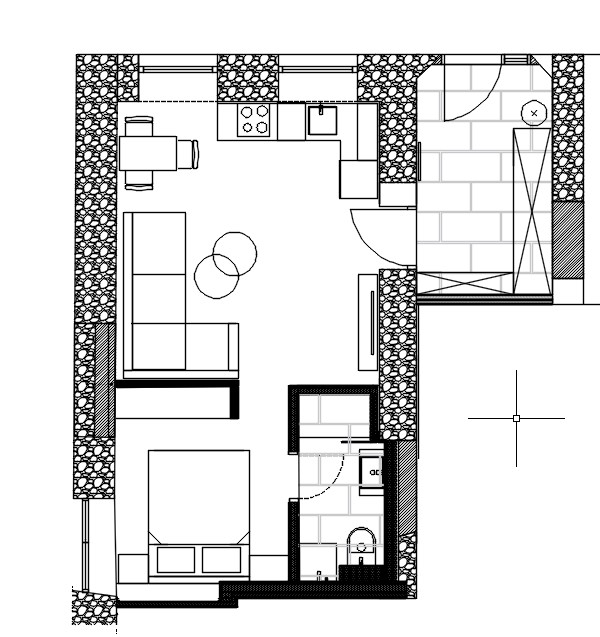
(STANOVANJE 40 m2)

V samem centru Sežane je na prodaj 8 sodobnih stanovanj v celoti prenovljenem objektu. Odlična priložnost tako za investicijo kot za lastno bivanje.

Velikost stanovanja: - 40 m2

                              - funkcionalni tloris 

                               - premišljeno zasnovani prostori

Posebne prednosti: - stanovanje je pritlično z lsatnim vhodom

                                   - objekt je temeljito prenovljen

                                    - predviden zaključek del: približno v roku 2 mesecev

Izjemna lokacija

Nepremičnina se nahaja v samem centru Sežane, kjer je v neposredni bližini: (trgovina, šola, vrtec, zdravstveni dom, pošta, banka, ostale storitve). Vse na dosegu hoje.

Odlična investicijska priložnost 

Zaradi manjših kvadratur je stanovanje idealno za: dolgoročno oddajanje, kratkoročni najem, prvo stanvoanje za mlade pare ali posameznike ter za starejše osebe. Lokacija omogoča hitro oddajo in stabilen donos.

Cene stanovanja 40m2=189.435,00 eur z vključenim DDV-jem.

 

Za več informacij, razporeditev stanovanj in ogled nas kontaktirajte.

 

 

Map

Pricedrop

All properties